• 70 000 € vente
  • 70 000 € vente
  • 70 000 € vente
  • 70 000 € vente
  • 70 000 € vente
  • 70 000 € vente
  • 70 000 € vente
  • Type: Terrain à bâtir
  • Vals les bains

Terrain à vendre à Vals les bains

70 000 € - Ref. TTER2577

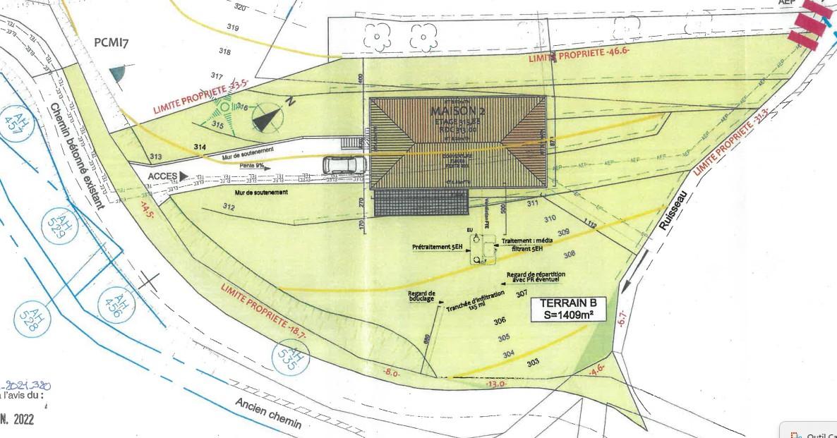
Terrain 1400 m² AVEC VUE à vendre sur Vals Les Bains avec permis pour maison RT 2012 - À seulement 10 minutes d'AUBENAS et à proximité immédiate du centre de VALS-LES-BAINS, charmante ville thermale, découvrez ce beau terrain d'environ 1400 m² situé sur les hauteurs, en position dominante.

Bénéficiant d'une exposition plein sud, il offre une vue dégagée sur la nature environnante, dans un cadre paisible et privilégié.

Le terrain dispose d'un permis de construire déjà accordé pour une maison conforme à la norme RT 2012, vous permettant de concrétiser votre projet rapidement tout en évitant les contraintes actuelles liées à la RE2020.

Les travaux de terrassement ainsi que l'accès ont déjà été réalisés, un véritable gain de temps pour démarrer votre construction.

Les réseaux se trouvent en bordure de parcelle, facilitant les raccordements. Un système d'assainissement individuel est à prévoir.

Idéalement situé, ce terrain allie proximité des commerces, des écoles et des commodités, avec le calme d'un environnement naturel préservé.

Une belle opportunité pour concrétiser votre projet de vie dans un cadre agréable et recherché.

N'hésitez pas à nous contacter pour plus d'informations ou pour organiser une visite. Honoraires à la charge du vendeur.
Vous pouvez consulter les barèmes d'honoraires à l'adresse suivante : https://www.07aasi.fr/nos-honoraires

Informations détaillées

  • Surface du terrain : 1409
  • Hauteur Maxi : 8
  • Date du permis de construire : 0000-00-00
  • Viabilité : Oui
  • Assainissement : Non
  • Urbanisme : Zone rurale
  • Localisation : Agglomération
  • Aspect : Pentu
  • Catégorie : Terrain à bâtir
Politique liée au démarchage téléphonique : Nous vous informons de votre droit d'inscription à la liste d'opposition pour le démarchage téléphonique et vous suggérons de vous inscrire sur Bloctel. Bloctel est la liste d'opposition au démarchage téléphonique sur laquelle tout consommateur peut s'inscrire gratuitement afin de ne plus être démarché téléphoniquement par un professionnel avec lequel il n'a pas de relation contractuelle en cours, conformément à la loi n°2014-344 du 17 mars 2014 relative à la consommation. La loi précise qu'il est interdit à tout professionnel, directement ou par l'intermédiaire d'un tiers agissant pour son compte, de démarcher téléphoniquement un consommateur inscrit sur cette liste, à l'exception des cas énumérés par la loi.

** Les informations recueillies sur ce formulaire peuvent être enregistrées dans un fichier informatisé par ENTRE VILLE ET VIGNE pour gérer votre demande de contact. Les données sont conservées pendant la durée de gestion de la demande de contact. Vous pouvez accéder aux données vous concernant, les rectifier, demander leur effacement ou exercer votre droit à la limitation du traitement de vos données en contactant "ENTRE VILLE ET VIGNE" par courrier à l'adresse suivante : 31 Place de Levigny 73850 CHARNAY LES MACON. Consultez le site cnil.fr pour plus d'informations sur vos droits.